❋
Fall 2026 | All-In Delivered Cost
$85,000 – $125,000 per unit
Modular Homes: Simple, Affordable, and Sleek.
What to Expect
The Classic Simeon Pod Home
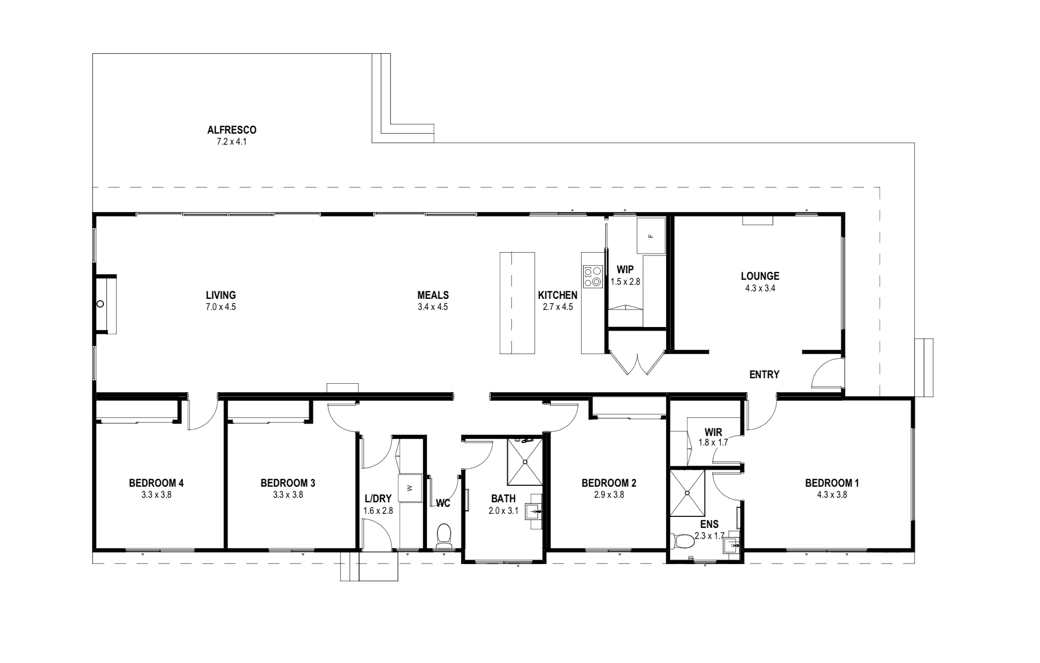
The Classic Simeon Pod Home is a thoughtfully designed, self-contained residence that balances compact efficiency with real livability. Designed for individuals or small households, it delivers the comfort of a permanent home within a streamlined modular footprint.
Inside, the layout centers around a bright, open living space that integrates the kitchen, dining, and lounge into a single cohesive area. High ceilings and clean architectural lines create an open, breathable feel that defies the pod’s efficient size.
Two private sleeping zones are positioned to provide separation and quiet, making the home well-suited for shared living, transitional housing, or long-term residency. Each bedroom is supported by its own bathroom, offering independence, privacy, and everyday convenience.
Large sliding doors connect the interior to the outdoors, allowing natural light to flood the space and creating a seamless transition to an optional deck or entry patio. The result is a home that feels grounded, functional, and dignified — not temporary.
As we rebuild America’s workforce and housing infrastructure, the Classic Simeon Pod is designed to meet modern Section 8 and housing-assistance standards while remaining equally suited for first-time homebuyers seeking an attainable path to ownership.
The Classic Simeon Pod Home is built to support stability, routine, and ownership — offering a modern housing solution that is scalable, durable, and designed for real life.
Dimensions & Configuration
Approximate Interior Area: ~720–760 sq ft
Bedrooms: 2
Bathrooms: 2
Ceiling Height: Up to 9 ft (2,700 mm)
Footprint: Modular rectangular pod, optimized for stacked or clustered deployment
Outdoor Option: Front or side deck / patio integration
(Final dimensions and layouts configurable based on jurisdiction, zoning, and deployment use.)
Intentional Structure
Every program and living space is designed with purpose — creating clear routines, accountability, and momentum so individuals can focus, progress, and succeed.
Collaborative Energy
We cultivate an environment where people learn, work, and grow together, building trust, pride, and shared responsibility through community.
Expert Facilitation
Industry professionals guide each step of the journey, delivering hands-on training, mentorship, and real-world standards that prepare participants for long-term careers.
A Stable Foundation
Secure housing and consistent support remove uncertainty, allowing individuals to build stability, confidence, and a pathway toward independence and ownership.
Rethink homeownership and step into the home of the future.
STEP 2 — Designed With Purpose
Smart layouts. Real livability. Modern architecture.
Our floorplans are intentionally designed to make the most of every square foot. Open living areas, private sleeping spaces, and natural light create homes that feel expansive, calm, and functional.
This is architecture with intention — adaptable to workforce housing, first-time ownership, and future growth. Every design balances efficiency with comfort, proving that attainable housing can still be beautiful.
STEP 1 — We Remove the Stress
Not a kit. Not a guess. A real home, fully built.
Buying a home shouldn’t feel overwhelming. We simplify the entire process by delivering fully built, professionally engineered modular homes — not kits, not flat packs, not unfinished concepts.
From structure to systems, every Simeon home is constructed with care, precision, and pride. You’re not assembling parts — you’re stepping into a home designed to last and built to be lived in.
By choosing this path, you’re also helping redefine how housing is delivered — creating homes that support stability, dignity, and opportunity for others.
STEP 3 — A New Kind of Ownership
Redefining homeownership for the future.
Simeon homes are built for people who want more than a roof — they want stability, pride, and a stake in something meaningful. Whether you’re a first-time buyer or transitioning into ownership, this is a home you can stand behind.
By choosing a Simeon home, you’re not just investing in yourself — you’re participating in a new housing model that strengthens communities and helps rebuild America from the ground up.
How It Works
-
Browse our modular home designs, floorplans, and use cases. Each home is fully built, professionally engineered, and designed for real life — not a kit, not a concept.
-
Connect with our team to discuss your goals, budget, and location. We help you understand zoning, placement, financing options, and whether our homes are the right fit.
-
Select the home that fits your lifestyle — from efficient single-unit pods to multi-bedroom layouts. Customization focuses on function, durability, and long-term value.
-
Your home is constructed in a controlled factory environment to exact standards. This ensures quality, speed, and consistency — while avoiding the delays of traditional construction.
-
We coordinate transport, site placement, and utility connections. Your home arrives complete, inspected, and ready — no assembly, no guesswork.
-
Step into a home you can be proud of. By choosing this model, you’re not just buying a house — you’re participating in a system that redefines affordability, ownership, and opportunity.

